Mixed-use Building with Mezzanine for Sale in Aradippou, Larnaka
For Sale / EUR 1.400.000
357 70007700
or
Κτήριο μικτής χρήσης προς πώληση στο κέντρο του Δήμου Αραδίππου της επαρχίας Λάρνακας, κοντά σε όλες τις υπηρεσίες και διευκολύνσεις. Το κτήριο διαθέτει άμεση πρόσβαση στις κύριες εμπορικές αρτηρίες της περιοχής και στον αυτοκινητόδρομο.
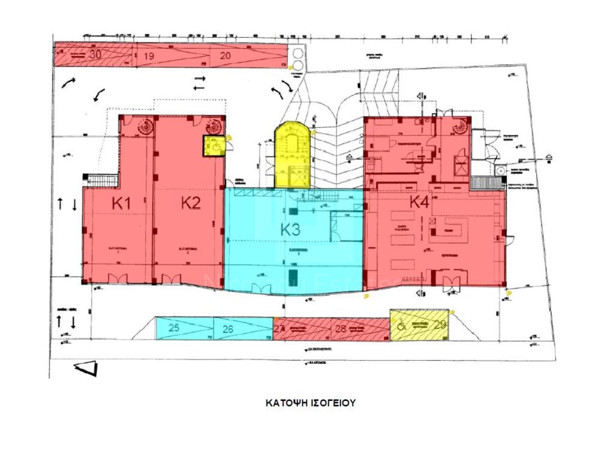
Το ακίνητο περιλαμβάνει 3 καταστήματα & 4 διαμερίσματα και αποτελείται από καλυμμένους χώρους στάθμευσης στο υπόγειο, συνολικά 4 καταστήματα στο ισόγειο και 11 διαμερίσματα στους ορόφους.
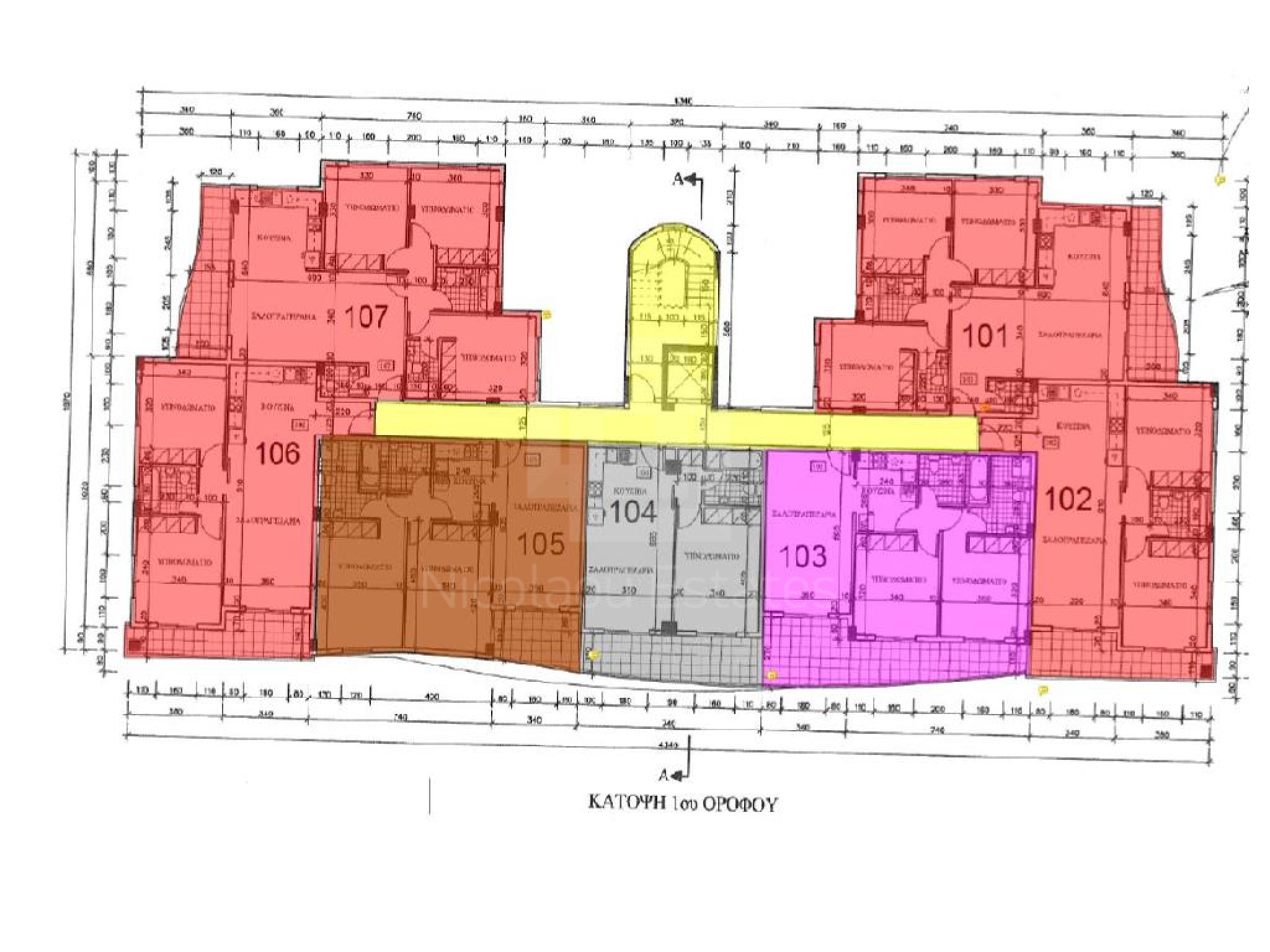
Το μερίδιο προς πώληση (23/48) αφορά 3 καταστήματα (Αρ. 1 & 2 και Αρ. 4) στο ισόγειο καθώς και τα 4 διαμερίσματα στον πρώτο όροφο (Αρ. 101, 102, 106 και 107).
Τα καταστήματα (Αρ.1 & 2) έχουν ενοποιηθεί βρίσκονται στο βόρειο τμήμα του ισογείου και λειτουργούν ως ενιαία μονάδα (φυσιοθεραπευτήριο). Το ενοποιημένο κατάστημα αποτελείται από χώρο υποδοχής, και διαμορφωμένους χώρους με γυψοσανίδα ενώ το μεσοπάτωμα αποτελείται από 2 τουαλέτες, κουζίνα και μια καλυμμένη βεράντα. Εμβαδόν του καταστήματος περί τα 220τ.μ. πλέον μεσοπάτωμα περί τα 110τ.μ. Σημειώνεται ότι το κατάστημα ενοικιάζεται προς 1,650/μήνα.
Το κατάστημα (Αρ. 4) βρίσκεται στο νότιο τμήμα του ισογείου και λειτουργεί ως αρτοποιείο. Εσωτερικά αποτελείται από ανοικτό χώρο έκθεσης προϊόντων και ταμείο ενώ στο μεσοπάτωμα υπάρχει γραφείο, αποχωρητήριο και ψυκτικός θάλαμος. Εμβαδόν του καταστήματος περί τα 224τ.μ. πλέον μεσοπάτωμα περί τα 81τ.μ. Σημειώνεται ότι το κατάστημα ενοικιάζεται προς 1,838/μήνα.
Τα διαμερίσματα (Αρ.101 & 107) στον 1ο όροφο είναι πανομοιότυπα και αποτελούνται από σαλόνι, καθιστικό, κουζίνα, τρία υπνοδωμάτια, μπάνιο/ αποχωρητήριο και μια καλυμμένη βεράντα. Εμβαδόν διαμερίσματος περί τα 96τ.μ. πλέον περί τα 10τ.μ. καλυμμένη βεράντα (έκαστο). Σημειώνεται ότι το διαμέρισμα (Αρ.101) ενοικιάζεται προς 500/μήνα και έχει διαμορφωθεί σε γραφείο ενώ το διαμέρισμα (Αρ. 107) ενοικιάζεται προς 480/μήνα.
Τα διαμερίσματα (Αρ.102 & 106) στον 1ο όροφο είναι πανομοιότυπα και αποτελούνται από σαλόνι, καθιστικό, κουζίνα, δυο υπνοδωμάτια, μπάνιο/ αποχωρητήριο και μια καλυμμένη βεράντα. Εμβαδόν διαμερίσματος περί τα 75τ.μ. πλέον περί τα 11τ.μ. καλυμμένη βεράντα (έκαστο). Σημειώνεται ότι το διαμέρισμα (Αρ.102) ενοικιάζεται προς 420/μήνα και έχει διαμορφωθεί σε γραφείο ενώ το διαμέρισμα (Αρ. 106) ενοικιάζεται προς 450/μήνα.
Το συνολικό εμβαδό των καταστημάτων ανέρχεται σε 444τ.μ. (περίπου) ενώ το εμβαδό των διαμερισμάτων ανέρχεται σε 342τ.μ. (περίπου).
Το ακίνητο διαθέτει συμφωνία διανομής και το μερίδιο προς πώληση (23/48) αφορά τα 3 καταστήματα (Κ1 & Κ2 και Κ4) καθώς και 4 διαμερίσματα στον πρώτο όροφο (Αρ. 101, 102, 106 και 107).
Το ακίνητο προς πώληση αποτελείται ιδανική επιλογή για επένδυση καθώς αποφέρει συνολικό ενοίκιο 5,338/μήνα.
-----------
Mixed use building for sale in the center of Aradippou Municipality, Larnaca district, close to all services and facilities. The building has direct access to the area's main commercial arteries and the highway.
The property includes 3 shops & 4 apartments and consists of covered parking spaces in the basement, a total of 4 shops on the ground floor and 11 apartments on the upper floors.
The share for sale (23/48) corresponds 3 shops (No 1 & 2 and No 4) on the ground floor and 4 flats (No 101, 102,106 and 107) on the 1st floor.
Shops (No1 & 2) have been unified and they operate as a single unit (physiotherapy center). They are situated on the northern part of the ground floor and internally consists of an entrance hall, separate rooms, while the mezzanine consists of two toilets, kitchenette and covered veranda. The unified shop has a total area of approximate 220qm plus a mezzanine of approximate 110sqm. It is noted that the shop is rented for 1,650/month.
Shop (No 4) is situated on southern part of the ground floor and operates as a bakery. Internally consists of an open plan retail area, while the mezzanine consists of an office, toilet and refrigerator. The shop has a total area of approximate 224qm plus a mezzanine of approximate 81sqm. It is noted that the shop is rented for 1,838/month.
Flats (No. 101 & 107) on the 1st floor are similar to each other and consists of siting, dining room, kitchen, bathroom, three bedrooms and a covered veranda. Internal area of each flat is 96sqm (approx.) plus 10sqm covered veranda (approx.). It is noted that flat No. 101 is rented for 500/month and it is used as an office and flat (No. 107) is rented for 480/month.
Flats (No. 102 & 106) on the 1st floor are similar to each other and consists of siting, dining room, kitchen, bathroom, two bedrooms and a covered veranda. Internal area of each flat is 75sqm (approx.) plus 11sqm covered veranda (approx.). It is noted that flat No. 102 is rented for 420/month and it is used as an office and flat (No. 106) is rented for 450/month.
Total shops area for sale is approximate 444sqm and total flat area is approximate 342sqm.
It is noted that the property has acquired a distribution agreement. The share for sale (23/48) corresponds 3 shops (K1 & K2 and K4) and 4 flats (No 101, 102,106 and 107) on the 1st floor as specified with red colour on the drawing.
The building is considered as an ideal choice for investment as the total income of the property is 5.338/month.





